







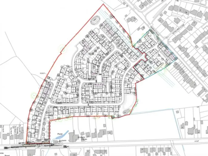
A detailed Planning Application has been submitted to Cheshire East, which relates to the land between Chelford Road and Whirley Road, opposite the Cock Inn. This follows on from the controversial decision by Cheshire East last September to grant outline permission to the former "Greenbelt" site, despite strong opposition from residents, our local MP, local Cheshire East councillors and Henbury Parish Council.
Bellway Homes are planning to purchase the site from Robinsons Brewery, if they can get agreement to this detailed Planning Application. A notable feature of this latest application is that Bellway intend to increase the housing density substantially – a 17% increase over the original planned number of homes on the site.
Representatives from Henbury Parish Council have arranged a meeting with Bellway in order to understand more details regarding the application. We will publish further information as it becomes available.
You can view full details of the Planning Application (Reference 19/3097M) here.
If you wish to comment on the application, you have until 7th August to do so.