







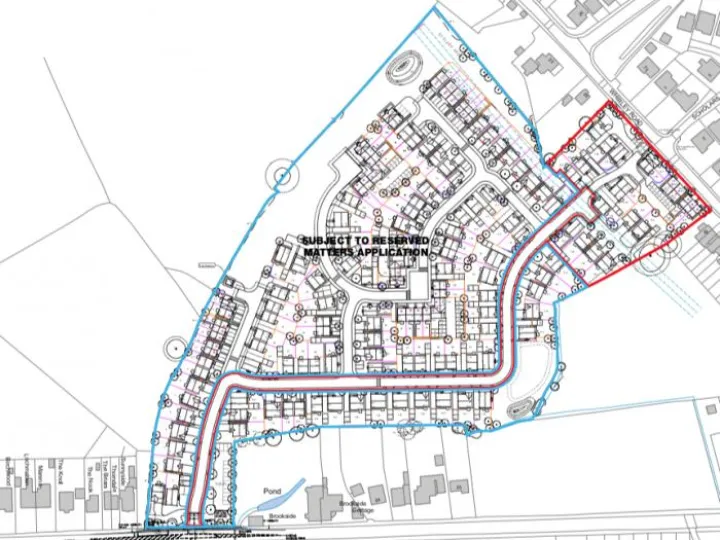
Bellway Homes have submitted a second Planning Application 19/3098M for the site between Chelford Road and Whirley Road. This relates to 23 houses to be built on the the North East corner of the overall site (outlined in red in our picture).
You can view the full application and submit your comments here
There is a point of difference between the two recent applications from Bellway.....
19/3097M, which relates to the bulk of the site (outlined in blue), is already covered by the outline planning application given last year, so in theory Bellway are merely seeking approval for the design and layout.
With this application (19/3098M), they are having to seek full approval for all aspects including the location, access, number and type of houses etc. This is to allow them to increase the total number of houses on the whole site from 134 (which received approval) to 157.
It raises the question that if Bellway fail to get approval for this part of the site (apparently larger, high-value houses), would they continue with the remainder of the site?
Of course, for local residents, the issues remain the same. Mainly these relate to the impact of such a large number of total houses on already overloaded local infrastructure:
Macclesfield Town Council have objected to both applications, and Henbury Parish Council will be doing the same.
If you have an opinion on these applications, it's important to register your own comments on the Cheshire East Planning Portal before 14th August. (7th August for 19/3097M).