Henbury Online Logo Link

Flora Development

14th February 2022 @ 6:06pm – by Henbury Webteam
Back home  /  News  /  Flora Development
flora plan jan 2022flora chelford road view

Update

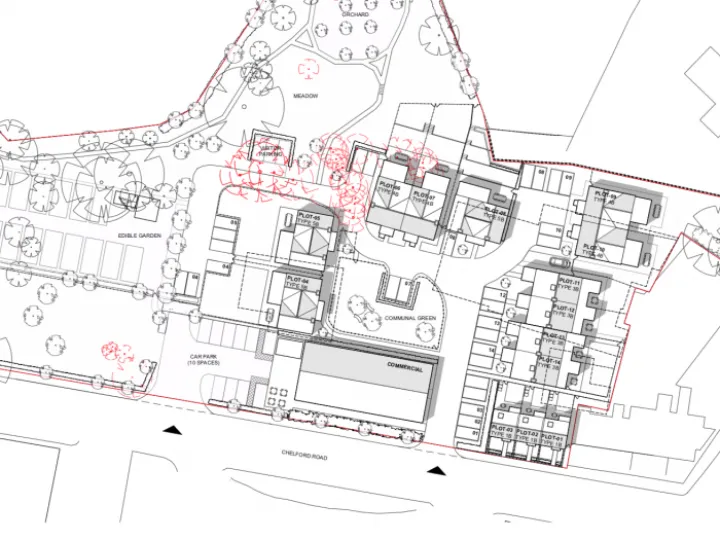
New plans have been submitted for the Flora development, following input from residents and others.
The main changes appear to be:

  • No access from Pepper Street
  • Access to residential units relocated to Chelford Road, and new access point created on Chelford Road for Commercial unit.
  • 1 bedroom "affordable houses" added to the Chelford Road frontage
  • Reduced car parking spaces for the commercial unit
  • Reduced size of commercial unit

You can see the plans here and comment on them until 3rd March.

Henbury Online is powered by our active community

Please send us your news and views.

© 2016-2025 Henbury Online