







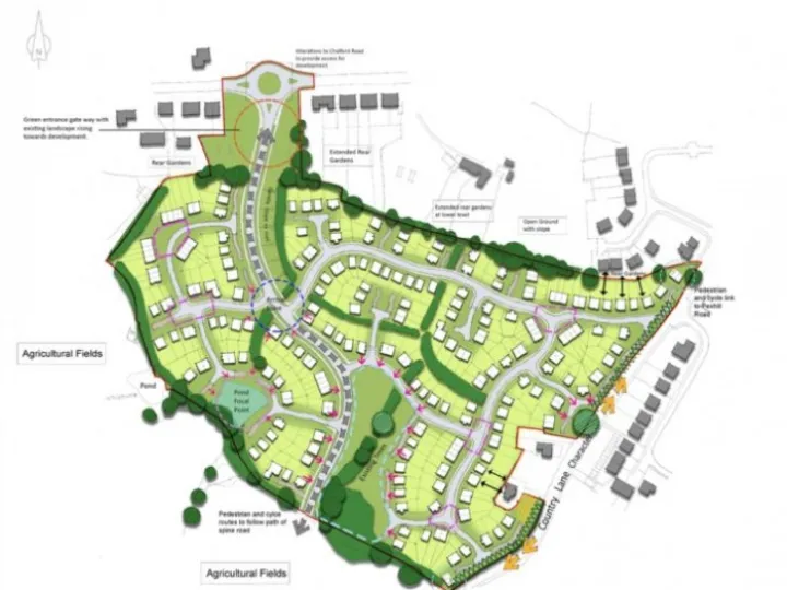
Cheshire East extended the deadline for receiving comments regarding the planning application to build hundreds of houses to the South of Chelford Road. The cut-off date is now 15th November.
See our earlier article here, for more details.
You can submit an objection on-line quite easily here.
If you have any concerns about the volume of traffic (or anything else) these developments will bring, now is your last chance to let the Planning Team at Cheshire East know your views.