







Last September, in a controversial decision, Cheshire East Council gave outline planning approval for 135 houses on a site opposite the Cock Inn on Chelford Road in Henbury.
Now developers Bellway homes have submitted detailed plans to increase the number of houses on the site.
Henbury Parish Council continue to have grave concerns regarding the development, with issues such as traffic volumes, air quality, lack of infrastructure (including school places) and destruction of a valuable wildlife habitat continuing to ring alarm bells, as no practical solutions seem to be proposed.
In addition, the plans appear to imply destruction of a community woodland planted by local schoolchildren some years ago. This is despite the fact that the Local Plan stated this would be retained.
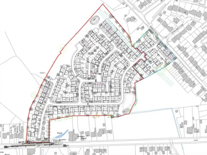
It's easy to see from the picture above how many houses Bellway are trying to squeeze onto the site, and what a contrast that density of housing will be to the surrounding properties.
In addition, Bellway have "designed in" 363 car parking spaces, which will clearly have a huge impact on local traffic volumes. In parallel, they are claiming that residents will be encouraged to use the excellent local transport facilities which they state run "from 5am to midnight". HPC have pointed out the errors in these claims.
Many local residents have also posted their objections on the CEC website. It is expected that a decision will be made at the CEC Strategic Planning Board in due course.
Residents have also contacted Henbury Online with concerns about the flooding impact of building on such a water-logged site. Noting the recent problems in Poynton which they fear have been caused by over-development, and lack of improvements to drainage infrastructure.
The site has been split into 2 separate planning applications, to support the increase in the number of houses. Henbury Parish Council's latest detailed objections are attached.