







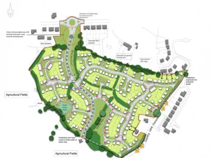
Redrow and Jones Homes have recently submitted an outline planning application for 232 houses to the south of Chelford Road near Broken Cross. This follows the recent application by Robinsons Brewery for 150 homes on the other side of Chelford Road, opposite the Cock Inn.
You can see full details of the application here on the Cheshire East website.
Both sites are on former greenbelt land that was released for development under the Cheshire East Local Plan.
Henbury Parish Council is opposed to both applications, and is currently putting together an objection to this latest proposal. The main reasons are concerns regarding
Although the same planning consultants are managing both applications, this time there has been no public consultation. However the public can submit comments or objections until 8th November on the Cheshire East website. It's straightforward to do this here.
If you have concerns about the volume of traffic (or anything else) these developments will bring, now is your chance to let the Planning Team at Cheshire East know your views.